1-Zimmer Apartment in München-Nymphenburg / Neuhausen
-
Ein wunderschönes „junior“ Apartment mit inklusiven Reinigungsservice. Komplett ausgestattet. Bad mit Dusche.
-
Flächen
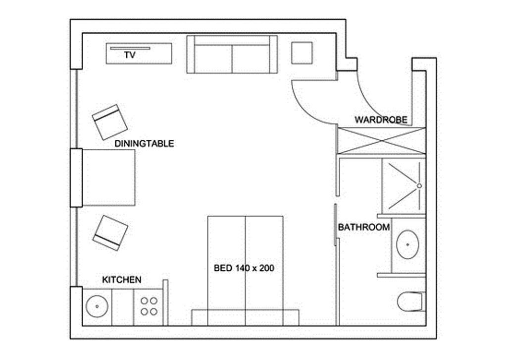
- Wohnfläche: 32 m²
- Zimmer insgesamt: 1
- Wohn- und Schlafzimmer: 1
- Etagen: 5
- Etage: EG
Sonstiges
- Immobilie ist verfügbar ab: auf Anfrage, da reserviert bis 08.11.2014
-
Das Apartment ist komplett eingerichtet. Die Ausstattung umfasst Kochnische, Kaffeemaschine, Geschirr und Besteck für mind. vier Personen, Flachbildschirm-TV-Gerät, HiFi-Anlage, Breitband-Internetzugang (ohne Extragebühren) und Türglocke. Doppelbett, Schrenke, Sofa, Stuhl, Tische usw.
- Art der Ausstattung: luxuriös
- Heizungsart: Zentralheizung
- Bodenbelag: Fliesen, Parkett
- Badausstattung: Dusche
- Internet: Breitband-Internetzugang (ohne Extragebühren)
- Service: Reinigung
-
vollmöbliert
-
Das Apartment befindet sich im Stadtteil Neuhausen. Entlang der Nymphenburger Straße und rund um das lebhafte Stadtteilzentrum Rotkreuzplatz bestimmen Wohn- und Geschäftshäuser aus der Zeit vor dem Ersten Weltkrieg das Stadtteilbild. Zu Fuss erreichen Sie den Münchener Hauptbahnhof in ca. 20 Minuten. Die nächste Tramhaltestelle Marsstraße ist 6 Gehminuten entfernt und die nächste U-Bahnhaltestelle Mailingerstraße ist 7 Gehminuten entfernt.
-
- Warmmiete: 1.522 €
- Pauschalmiete: 1.522 €
- Preise zuzüglich Mehrwertsteuer: ja
- MwSt.-Satz: 7 %
- Hinweise zu den Preisen: Die wöchentliche Apartmentreinigung und das Wechseln der Bettwäsche sind im Mietpreis inbegriffen. Jeden zweiten Tag werden die Badetücher kontrolliert und Handseife wird nachgefüllt. Den Wasch-Service für private Wäsche wird auf Anfrage für pauschal EUR 250.-/Monat angeboten.
Dein Kontakt bei uns
- E-Mail: email@property4you.de
- Telefon: +49-89-20009777
- Weitere Informationen: http://www.property4you.de
- E-Mail (Zentrale): info@rent-a-partment.com
- Telefon (Zentrale): +49-89-25545731


















