3-Zimmer Wohnung in München-Nymphenburg / Neuhausen
-
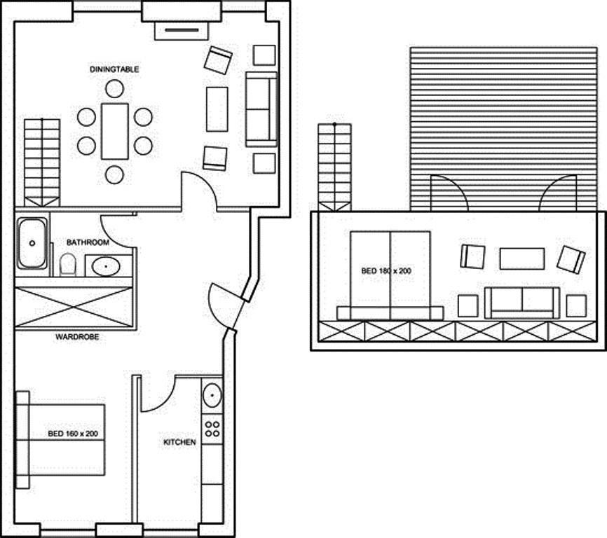
Diese wunderschöne 3-Zimmer „First Class“ Maisonette Wohnung, inklusive Reinigungsservice bietet Ihnen ein freien Blick über die Dächer von München. Sie verfügt über ein Wohn- und Esszimmer, eine Wohnküche, ein modernes Badezimmer mit Duschwanne, zwei Schlafzimmer und Dachterrasse.
-
Flächen
- Wohnfläche: 108 m²
- Zimmer insgesamt: 3,5
- Etagen: 5
- Etage: 5
- Stellplatzart: Tiefgarage
Sonstiges
- Immobilie ist verfügbar ab: derzeit vermietet
-
Diese Luxus Wohnung ist komplett eingerichtet und verfügt über eine wunderschöne Dachterrasse. Die Ausstattung umfasst Küche (mit Geschirrspüler, Herd, Kaffeemaschine, Geschirr und Besteck für mind. vier Personen), Flachbildschirm-TV-Gerät, HiFi-Anlage, Breitband-Internetzugang (ohne Extragebühren) und Türglocke. 2 Doppelbetten, Schränke, Sofa, Esszimmer, Tische, Regale usw. Das Bad hat eine Badewanne.
Maße der vorhandenen Betten:
Bett Nr. 1: 180 x 200 cm
Bett Nr. 2: 160 x 200 cm- Art der Ausstattung: luxuriös
- Heizungsart: Zentralheizung
- Bodenbelag: Fliesen, Parkett
- Badausstattung: Badewanne
- Internet: Breitband-Internetzugang (ohne Extragebühren)
- Service: Reinigung
-
vollmöbliert
-
Das Apartment befindet sich im Stadtteil Neuhausen. Entlang der Nymphenburger Straße und rund um das lebhafte Stadtteilzentrum Rotkreuzplatz bestimmen Wohn- und Geschäftshäuser aus der Zeit vor dem Ersten Weltkrieg das Stadtteilbild. Zu Fuß erreichen Sie den Münchener Hauptbahnhof in ca. 20 Minuten. Die nächste Tramhaltestelle „Marsstraße“ (Linie 16, 17, N16) ist nur 6 Gehminuten entfernt und die nächste U-Bahnhaltestelle „Mailingerstraße“ (U1) ist nur 7 Gehminuten entfernt.
Ebenso in der Laufweite der Wohnung finden Sie Einkaufsmöglichkeiten für den täglichen Bedarf. -
- Warmmiete: 2.760 €
- Pauschalmiete: 2.760 €
- Kaution: nach Absprache
- Preise zuzüglich Mehrwertsteuer: ja
- MwSt.-Satz: 7 %
-
Hinweise zu den Preisen:
zzgl. 7% MwSt.
Die wöchentliche Apartmentreinigung und das Wechseln der Bettwäsche sind im Mietpreis inbegriffen. Jeden zweiten Tag werden die Badetücher kontrolliert und die Handseife wird nachgefüllt. Ein Wasch-Service für private Wäsche wird auf Anfrage für pauschale EUR 250,-/Monat angeboten. - Stellplatzmiete (Tiefgarage): 80 €
Dein Kontakt bei uns
- E-Mail: email@property4you.de
- Telefon: +49-89-20009777
- Weitere Informationen: http://www.property4you.de
- E-Mail (Zentrale): info@rent-a-partment.com
- Telefon (Zentrale): +49-89-25545731




















































